Panoramic
| |
Panoramic(SPEED : 1.0~1.75m/s) |
[unit
: mm] |
| Speed |
Person |
Load |
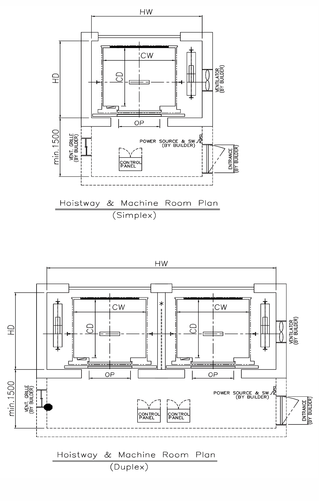
OP |
Car
Insize |
Hoistway |
Reactions |
Motor
Capacity
[kW] |
M/C
Room |
Overhead
|
PIT |
| Single(1unit) |
Duplex(2units) |
R1(Car) |
R2(C.wt) |
| [m/sec] |
P |
[kg] |
[mm] |
CW |
CD |
HW |
HD |
HW |
HD |
[kg] |
[kg] |
1.0
1.5
1.75 |
6 |
450 |
800 |
1400 |
850 |
2200 |
1450 |
4450 |
1450 |
4000 |
3100 |
3.7 / 6.3 / 7.3 |
2400 |
4500 / 4600 / 4700 |
2000 / 2300 |
| 7 |
550 |
800 |
1400 |
1050 |
2200 |
1600 |
4550 |
1600 |
4300 |
3400 |
3.7 / 6.3 / 7.3 |
2400 |
4500 / 4600 / 4700 |
2000 / 2300 |
| 8 |
600 |
800 |
1400 |
1100 |
2200 |
1700 |
4550 |
1700 |
4500 |
3500 |
3.7 / 6.3 / 7.3 |
2400 |
4500 / 4600 / 4700 |
2000 / 2300 |
| 8 |
630 |
800 |
1400 |
1150 |
2200 |
1800 |
4550 |
1800 |
4600 |
3600 |
3.7 / 6.3 / 7.3 |
2400 |
4500 / 4600 / 4700 |
2000 / 2300 |
| 9 |
700 |
800 |
1400 |
1250 |
2200 |
1850 |
4550 |
1850 |
4700 |
3700 |
5.0 / 8.0 / 9.0 |
2400 |
4500 / 4600 / 4700 |
2000 / 2300 |
| 10 |
800 |
800 |
1400 |
1350 |
2200 |
1950 |
4550 |
1950 |
5000 |
4000 |
5.0 / 8.0 / 9.0 |
2400 |
4500 / 4600 / 4700 |
2000 / 2300 |
| 12 |
900 |
900 |
1600 |
1350 |
2400 |
1950 |
4950 |
1950 |
6300 |
4400 |
6.7 / 10.0 / 11.7 |
2400 |
4500 / 4600 / 4700 |
2000 / 2300 |
| 13 |
1000 |
900 |
1600 |
1500 |
2400 |
2100 |
4950 |
2100 |
6700 |
4700 |
6.7 / 10.0 / 11.7 |
2400 |
4500 / 4600 / 4700 |
2000 / 2300 |
| 15 |
1150 |
1000 |
1800 |
1500 |
2800 |
2100 |
5750 |
2100 |
10100 |
6000 |
7.3 / 11.0 / 12.8 |
2400 |
4500 / 4600 / 4700 |
2000 / 2300 |
| 18 |
1350 |
1000 |
1800 |
1700 |
2800 |
2300 |
5750 |
2300 |
10700 |
6500 |
8.6 / 12.9 / 15.0 |
2400 |
4500 / 4600 / 4700 |
2000 / 2300 |
| 21 |
1600 |
1100 |
2000 |
1750 |
3000 |
2350 |
6150 |
2350 |
12100 |
6700 |
10.2 / 15.2 / 17.8 |
2400 |
4500 / 4600 / 4700 |
2000 / 2300 |
| 26 |
2000 |
1100 |
2000 |
2000 |
3000 |
2600 |
6150 |
2600 |
12900 |
7100 |
13.4 / 20.0 / 23.4 |
2400 |
4500 / 4600 / 4700 |
2000 / 2300 |
|
| |
Panoramic(SPEED : 2.0~2.5m/s) |
[unit
: mm] |
| Speed |
Person |
Load |
OP |
Car
Insize |
Hoistway |
Reactions |
Motor
Capacity
[kW] |
M/C
Room |
Overhead
|
PIT |
| Single(1unit) |
Duplex(2units) |
R1(Car) |
R2(C.wt) |
| [m/sec] |
P |
[kg] |
[mm] |
CW |
CD |
HW |
HD |
HW |
HD |
[kg] |
[kg] |
2.0
2.5 |
12 |
900 |
900 |
1600 |
1350 |
2400 |
1950 |
4950 |
1950 |
6300 |
4400 |
13.4 / 16.7 |
2500 |
5000 / 5500 |
2100 / 2400 |
| 13 |
1000 |
900 |
1600 |
1500 |
2400 |
2100 |
4950 |
2100 |
6700 |
4700 |
13.4 / 16.7 |
2500 |
5000 / 5500 |
2100 / 2400 |
| 15 |
1150 |
1000 |
1800 |
1500 |
2800 |
2100 |
5750 |
2100 |
10100 |
6000 |
14.6 / 18.3 |
2500 |
5000 / 5500 |
2100 / 2400 |
| 18 |
1350 |
1000 |
1800 |
1700 |
2800 |
2300 |
5750 |
2300 |
10700 |
6500 |
17.1 / 21.4 |
2500 |
5000 / 5500 |
2100 / 2400 |
| 21 |
1600 |
1100 |
2000 |
1750 |
3000 |
2350 |
6150 |
2350 |
12100 |
6700 |
20.3 / 25.4 |
2500 |
5000 / 5500 |
2100 / 2400 |
| 26 |
2000 |
1100 |
2000 |
2000 |
3000 |
2600 |
6150 |
2600 |
12900 |
7100 |
26.7 / 33.4 |
2500 |
5000 / 5500 |
2100 / 2400 |
|
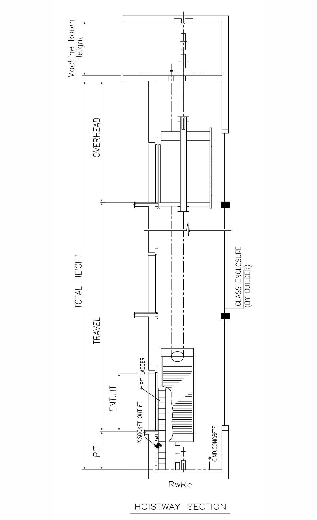
Note
1. Above dimensions in table shall be under the following conditions
1) Door opening : 2panel Side opening (2P-2S), 2) No. of Door in Car : 1Car 1Door
2. OH, PIT dimensions shall be under the following condition
Entrance Height : 2100mm, Cab Height : Manufacturer's standard