로고

엘지에스엘리베이터 LGS Elevator Korea Co., Ltd.
  • Planning Guide
  • MRL
  • Planning Guide

    MRL

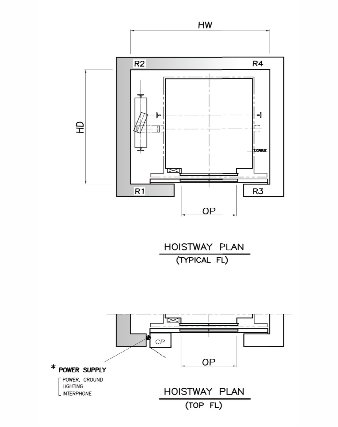
    Machine Roomless Elevator(MRL) [unit : mm]
    Speed Person Load OP Car Insize Hoistway Reactions Motor Capacity
    [kW]
    Overhead
    PIT
    Single(1unit) R1(C.wt) R2(C.wt) R1(Car) R2(Car)
    [m/sec] P [kg] [mm] CW CD HW HD Front[kg] Rear[kg] Front[kg] Rear[kg]
    1.0
    1.5
    1.75
    2.0
    2.5
    6 450 700 1100 1150 1850 1600 2200 4000 1500 400 2.9 / 4.3 / 5.0 / 8.4 / 13.4 3800 / 3900 / 3950 / 4100 / 4400 1350 / 1450 / 1500 / 1700 / 1900
    8 550 700 1100 1200 1850 1700 2200 4000 1500 400 4.0 / 6.0 / 7.0 / 8.4 / 13.4 3800 / 3900 / 3950 / 4100 / 4400 1350 / 1450 / 1500 / 1700 / 1900
    9 630 800 1250 1200 2000 1700 2200 4300 1600 600 4.0 / 6.0 / 7.0 / 8.4 / 13.4 3800 / 3900 / 3950 / 4100 / 4400 1350 / 1450 / 1500 / 1700 / 1900
    10 700 800 1250 1350 2000 1800 2200 4300 1600 600 5.1 / 7.6 / 8.9 / 10.0 / 13.4 3800 / 3900 / 3950 / 4100 / 4400 1350 / 1450 / 1500 / 1700 / 1900
    11 800 800 1250 1450 2000 1900 2200 4500 1600 600 5.1 / 7.6 / 8.9 / 10.0 / 13.4 3800 / 3900 / 3950 / 4100 / 4400 1350 / 1450 / 1500 / 1700 / 1900
    13 900 900 1600 1350 2300 1800 2600 5100 1900 700 6.4 / 9.5 / 11.1 / 13.4 / 16.7 3800 / 3900 / 3950 / 4100 / 4400 1350 / 1450 / 1500 / 1700 / 1900
    15 1000 900 1600 1450 2300 1900 2600 5200 1900 700 6.4 / 9.5 / 11.1 / 13.4 / 16.7 3800 / 3900 / 3950 / 4100 / 4400 1350 / 1450 / 1500 / 1700 / 1900
    17 1150 1000 1600 1680 2500 2100 2900 5900 2200 900 7.3 / 11.0 / 12.8 / 14.6 / 18.3 3800 / 3900 / 3950 / 4100 / 4400 1350 / 1450 / 1500 / 1700 / 2000
    20 1350 1000 1800 1700 2700 2100 3500 6800 2500 1200 8.6 / 12.9 / 15.0 / 17.1 / 21.4 4000 / 4100 / 4150 / 4300 / 4400 1500 / 1600 / 1700 / 1900 / 2100
    24 1600 1100 1800 1900 2700 2300 4700 7200 3000 1200 10.2 / 15.2 / 17.8 / 20.3 / 25.4 4000 / 4100 / 4150 / 4300 / 4400 1500 / 1600 / 1700 / 1900 / 2100
    28 2000 1100 1800 2200 2750 2600 6200 7600 3500 1400 13.4 / 20.1 / 23.4 / 26.7 / 33.7 4000 / 4100 / 4150 / 4300 / 4400 1500 / 1600 / 1700 / 1900 / 2100

    Note
    1. Above dimensions in table shall be under the following conditions.
    1) Door opening : 2panel Center opening (2P-CO)
    2) No. of Door in Car : 1Car 1Door