MMR BED-Gearless
| |
BED(Hospital)Elevator |
[unit
: mm] |
| Speed |
Person |
Load |
OP |
Car
Insize |
Hoistway |
Reactions |
Motor
Capacity
[kW] |
M/C
Room |
Overhead
|
PIT |
| Single(1unit) |
Duplex(2units) |
R1(Car) |
R2(C.wt) |
| [m/sec] |
P |
[kg] |
[mm] |
CW |
CD |
HW |
HD |
HW |
HD |
[kg] |
[kg] |
1.0
1.5
1.75 |
10 |
800 |
1100 |
1300 |
2300 |
2150 |
2900 |
4450 |
2900 |
7900 |
6100 |
5.0 / 8.0 / 9.0 |
2400 |
4400 / 4500 / 4600 |
1400 / 1600 |
| 13 |
1000 |
1100 |
1500 |
2300 |
2350 |
2900 |
4850 |
2900 |
11600 |
8500 |
6.7 / 10.0 / 11.7 |
2400 |
4400 / 4500 / 4600 |
1400 / 1600 |
| 15 |
1150 |
1200 |
1500 |
2500 |
2520 |
3000 |
5190 |
3000 |
11800 |
8700 |
7.3 / 11.0 / 12.8 |
2400 |
4400 / 4500 / 4600 |
1400 / 1600 |
2.0
2.5 |
10 |
800 |
1100 |
1300 |
2300 |
2150 |
2900 |
4450 |
2900 |
8400 |
6600 |
10.0 / 12.5 |
2500 |
5000 / 5500 |
2100 / 2400 |
| 13 |
1000 |
1100 |
1500 |
2300 |
2350 |
2900 |
4850 |
2900 |
12100 |
9000 |
13.4 / 16.7 |
2500 |
5000 / 5500 |
2100 / 2400 |
| 15 |
1150 |
1200 |
1500 |
2500 |
2520 |
3000 |
5190 |
3000 |
12300 |
9200 |
14.6 / 18.3 |
2500 |
5000 / 5500 |
2100 / 2400 |
|
Note
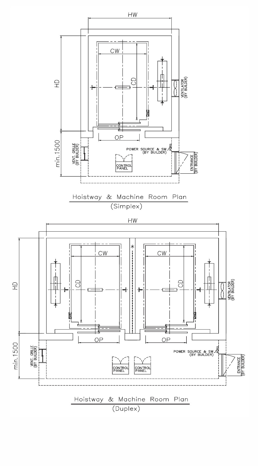
1. Above dimensions in table shall be under the following conditions
1) Door opening : 2panel Side opening (2P-2S), 2) No. of Door in Car : 1Car 1Door
2. OH, PIT dimensions shall be under the following condition
Entrance Height : 2100mm, Cab Height : Manufacturer's standard